Mercati, importanti novità in arrivo sul fronte dei servizi a disposizione di cittadini ed ambulanti.
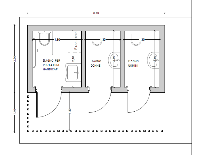
In piazza Cavalieri di Vittorio Veneto, che ospita il mercato settimanale ed in piazza Green per quello del sabato, saranno presto installate due aree-servizi di nuova generazione. Entrambe saranno dotate di tre bagni: per portatori di handicap, per donne e per uomini. Strutture totalmente prive di barriere architettoniche, attrezzate con impianti di igienizzazione automatica dei servizi, un fasciatoio reclinabile per neonati, punti di ricarica per smartphone ed apparecchi elettronici e pannelli fotovoltaici per assicurare la completa autosufficienza energetica. All’esterno, inoltre, verranno collocati un defibrillatore ed una cassetta di primo soccorso.
Un intervento molto atteso, dagli utenti e dai commercianti di uno dei mercati più importanti della provincia, reso possibile grazie all’aggiudicazione di un finanziamento regionale da 78mila euro, assegnato al Comune di Cassino nell’ambito del programma di riqualificazione dei mercati rionali giornalieri e settimanali. L’Amministrazione comparteciperà alla spesa per ulteriori 19.000 euro, per un investimento complessivo, di circa 97mila euro.



“Aggiudicandoci questi fondi abbiamo ottenuto un risultato davvero importante – ha commentato l’assessore al Commercio, Giuseppe Capizzi – a tutto beneficio dell’utenza del mercato e dei tanti commercianti che ogni giorno, dal lunedì al sabato, sia in piazza Cavalieri di Vittorio Veneto che nel resto del centro-città, lavorano e contribuiscono, in modo diretto ed indiretto, a sostenere l’economia locale. Un obiettivo raggiunto – ha sottolineato e concluso– grazie all’importante lavoro di squadra svolto dall’Ufficio Commercio, guidato dal Segretario Generale dott. Pasquale Loffredo e dalla funzionaria dott.ssa Daniela Cimillo, con il contributo di tutti i dipendenti del settore, dell’Amministrazione comunale e del sindaco Enzo Salera che fin da subito ha supportato il progetto. Il Comune così, potrà assicurare nuovi servizi, moderni ed efficienti, a tantissimi cittadini ed utenti, innalzando i livelli di qualità e funzionalità dei mercati cittadini, fondamentali leve economiche per Cassino e per la nostra comunità”.
Clicca qui per leggere ulteriori notizie



